Onder bod:Moerstraatseweg 44, 4727 SN Moerstraten - Foto
Onder bod
+49

Moerstraatseweg 44 4727 SN Moerstraten € 400.000,- k.k.

  • Woonhuis
  • 4 kamers
  • 3 slaapkamers
  • 1 badkamer
  • Bouwjaar 1935
  • 293 m² perceeloppervlakte
  • 133 m² gebruiksoppervlakte
  • A Energielabel A

Beschrijving

Aan de rand van het dorp, met een prachtig vrij uitzicht over uitgestrekte landerijen, staat deze royaal uitgebouwde en uitstekend onderhouden halfvrijstaande woning uit 1930. De woning combineert authentieke charme met hedendaags wooncomfort en beschikt over een moderne aanbouw van maar liefst 85 m² (2012), waardoor er verrassend veel leefruimte is ontstaan.

Indeling

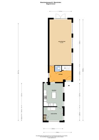
Via de hal bereikt u het vernieuwde toilet (2023), de woonkeuken en woonkamer. De moderne keuken is recent vernieuwd en voorzien van diverse inbouwapparatuur. Aansluitend bevindt zich een praktische bijkeuken met witgoedaansluitingen en cv-installatie (2002), welke vervangen dient te worden.

De lichte, royale woonkamer beschikt over een tegelvloer, rolluiken en openslaande tuindeuren naar de zonnige achtertuin met vrij uitzicht.

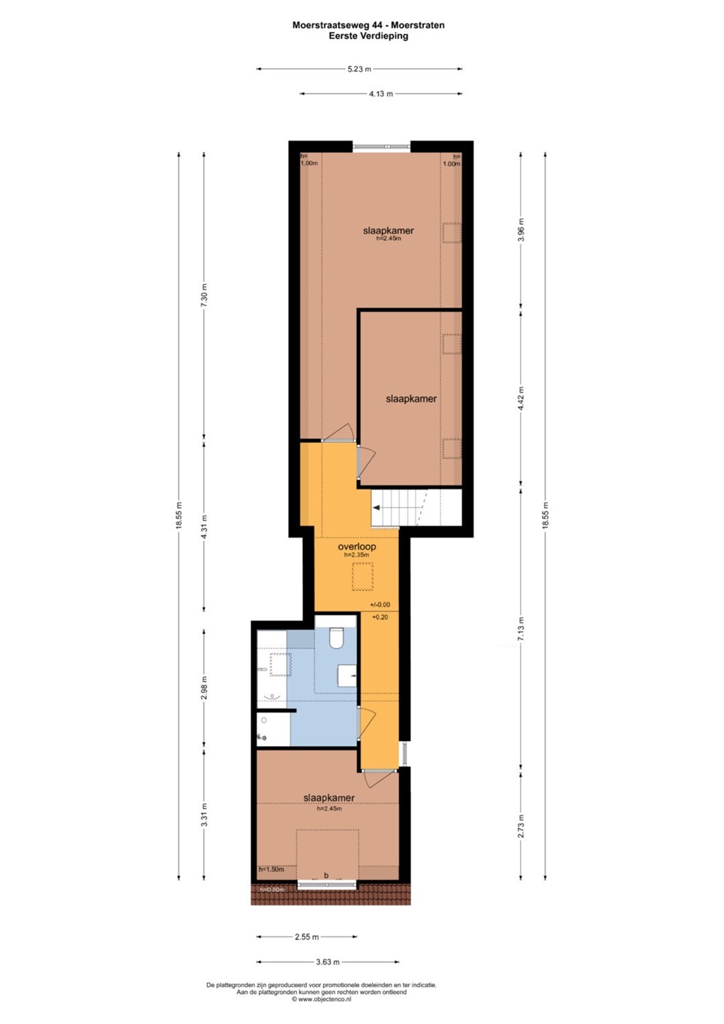
Eerste verdieping

Overloop met vaste kasten en toegang tot drie ruime slaapkamers, waarvan de grootste is voorzien van airconditioning. De badkamer is compleet ingericht met ligbad, douche, wastafelmeubel en tweede toilet.

Tuin

De onderhoudsvriendelijke achtertuin is zonnig gelegen en voorzien van een overkapping en brede achterom. Het geïsoleerde bijgebouw (met 12 zonnepanelen) is multifunctioneel inzetbaar, bijvoorbeeld als werk- of hobbyruimte.

Bijzonderheden

- Royale aanbouw van ca. 85 m² (2012)
- Energielabel A en 12 zonnepanelen
- Vloerverwarming aanwezig
- Drie ruime slaapkamers
- Multifunctioneel, geïsoleerd bijgebouw
- Vrij uitzicht over de landerijen

Kaart

Kenmerken

Overdracht

Referentienummer
00005
Vraagprijs
€ 400.000,- k.k.
Elektra
€ 100,-
Gas
€ 120,-
Water
€ 23,-
Status
Onder bod
Aanvaarding
In overleg
Aangeboden sinds
Vrijdag 27 februari 2026
Laatste wijziging
Dinsdag 31 maart 2026

Bouw

Type object
Woonhuis, eengezinswoning, half vrijstaande woning
Soort bouw
Bestaande bouw
Bouwperiode
1935
Dakbedekking
Bitumen
Dakpannen
Type dak
Mansardedak
Isolatievormen
Dakisolatie
Gedeeltelijk dubbel glas
Muurisolatie
Vloerisolatie

Oppervlaktes en inhoud

Perceeloppervlakte
293 m²
Woonoppervlakte
133 m²
Inhoud
559 m³
Oppervlakte externe bergruimte
21 m²

Indeling

Aantal bouwlagen
2
Aantal kamers
4 (waarvan 3 slaapkamers)
Aantal badkamers
1

Tuin

Type
Achtertuin
Oriëntering
Zuidoost
Staat
Normaal

Energieverbruik

Energielabel
A

CV ketel

Warmtebron
Gas
Combiketel
Ja
Eigendom
Eigendom

Uitrusting

Aantal parkeerplaatsen
2
Warm water
CV-ketel
Verwarmingssysteem
Centrale verwarming
Keukenvoorzieningen
Inbouwapparatuur
Kookeiland
Badkamervoorzieningen
Douche
Ligbad
Toilet
Wastafel
Wastafelmeubel
Parkeergelegenheid
Garage
Heeft airco
Ja
Tuin aanwezig
Ja
Heeft een garage
Ja
Heeft rolluiken
Ja
Heeft zonnepanelen
Ja

Kadastrale gegevens

Kadastrale aanduiding
Roosendaal B 1099
Perceeloppervlakte
293 m²
Eigendomsituatie
Eigen grond

Brochure(s) en overige bijlagen

Brochure Moerstraatseweg 44 (2).pdf Download